發布時間:2021-05-08 10:53:17 瀏覽次數:次
新鄉市大漢振動機械是專業生產、設計提升設備的斗式提升機廠家,應廣大客戶的需求,匯集各斗式提升機型號及斗式提升機圖紙,以供用戶參考使用:

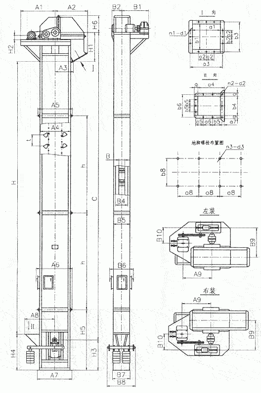
圖1:TD斗式提升機結構圖
| 斗提機型號 | TD100 | TD160 | TD250 | TD315 | TD400 | TD500 | |
| 輪廓高度L | C+1100 | C+1363 | C+1535 | C+1640 | C+1790 | C+1865 | |
| 整機結構 | H H4 S |
C-820 600 200 |
C-930 700 250 |
C-1250 800 250 |
C-1245 850 250 |
C-1500 950 250 |
C-1700 900 250 |
| 料斗 | t b |
200 100 |
350/280 160 |
450/360 250 |
500/400 315 |
560/480 400 |
625/500 500 |
| 地腳孔 | a3 b3 n3 d3 |
200 310 8 Φ18 |
250 400 8 Φ18 |
300 538 8 Φ18 |
300 648 8 Φ18 |
400 768 8 Φ22 |
400 900 8 Φ22 |
| 上、下部機殼及外形輪廓 | H3 H6 A2 A6 A7 B2 B4 B5 |
970 1210 692 776 1050 220 370 330 |
1185 1500 985 996 1235 295 461 475 |
1320 1800 1175 1266 1600 394 596 610 |
1488 1800 1200 1266 1700 440 706 710 |
1500 2000 1350 1558 1980 535 828 835 |
1655 2300 1410 1610 2200 605 980 1000 |
| 中部機殼 | A4 A5 B3 |
776 805 390 |
982 1021 525 |
1152 1302 682 |
1254 1400 794 |
1548 1580 920 |
1570 1630 1040 |
| 卸料口 | H1 A3 a1 a2 a3 b1 b2 b3 n1 d1 |
520 438 334 120 390 224 95 280 12 Φ12 |
630 548 365 150 431 315 150 381 12 Φ12 |
750 713 600 200 676 450 200 526 12 Φ12 |
795 763 560 230 638 560 230 638 12 Φ12 |
850 824 670 295 758 670 295 758 12 Φ14 |
1000 885 700 355 880 780 300 800 12 Φ18 |

圖2:TH斗式提升機結構圖
| 斗式提升機型號 | 整機結構尺寸 | 地腳孔尺寸 | 上部機殼尺寸 | 下部機殼尺寸 | 中部機殼尺寸 | |||||||||||||
| L | H | H3 | S | ag | bg | n3×d3 | H1 | A2 | B2 | H5 | A7 | A8 | B5 | A4 | A5 | B3 | B4 | |
| TH160 TH200 TH250 TH315 TH400 TH500 TH630 |
C+1300 C+1350 C+1500 C+1600 C+1760 C+2300 C+2300 |
C-750 C-750 C-850 C-900 C-950 C-940 C-950 |
750 750 850 900 950 1060 1250 |
200 200 200 250 250 250 300 |
400 400 340 350 400 360 400 |
320 425 496 571 658 788 918 |
6×Φ18 6×Φ18 8×Φ22 8×Φ22 8×Φ22 10×Φ26 10×Φ26 |
900 900 1000 1120 1250 1400 1600 |
1000 1000 1190 1267 1394 1545 1706 |
295 340 376 443 518 579 644 |
1500 1500 1800 1800 1900 2000 2200 |
1131 1131 1346 1416 1566 1808 2028 |
1330 1374 1649 1825 2080 2380 2720 |
497 506 598 695 793 910 1066 |
1000 1000 1180 1250 1400 1600 1800 |
1105 1105 1362 1396 1546 1768 1968 |
280 255 400 475 560 670 800 |
385 460 532 621 706 838 968 |

圖3:NE斗式提升機結構圖
| 型號 | NE15 | NE30 | NE50 | NE100 | NE150 | NE200 | |
| 機殼形式 | I | I | I | I | I | II | |
| 上機殼 | H1 | 523 | 840 | 665 | 741 | 766 | 968 |
| H2 | 1342 | 2265 | 1880 | 2000 | 1700 | 1780 | |
| 卸料口 | D1 | 900 | 955 | 1100 | 1475 | 1300 | 1650 |
| D2 | 800 | 1000 | 1000 | 1200 | 1200 | 1500 | |
| D3 | 250 | 300 | 350 | 350 | 400 | 550 | |
| D4 | 300 | 350 | 400 | 500 | 650 | 650 | |
| d1 | 306/3 | 356/3 | 406/3 | 406/3 | 456/3 | 606/4 | |
| d2 | 356/3 | 406/3 | 456/3 | 556/4 | 706/5 | 706/5 | |
| 平臺 | p1 | 1000 | 602 | 777 | 803 | 1200 | 1280 |
| p2 | 104 | 104 | 104 | 130 | 130 | 144 | |
| p3 | 1404 | 2403 | 1827 | 1740 | 1740 | 1864 | |
| p4 | 521 | 620 | 616 | 729 | 720 | 870 | |
| p5 | 1579 | 2041 | 2236 | 2380 | 23800 | 2730 | |
| p6 | 2300 | 2500 | 2500 | 2600 | 3300 | 4100 | |
| 中間機殼 | M1 | 1050 | 1240 | 1240 | 1450 | 1450 | 1750 |
| M2 | 1156 | 1340 | 1348 | 1598 | 1582 | 1888 | |
| M3 | 450 | 500 | 650 | 800 | 1060 | 1120 | |
| M4 | 556 | 600 | 780 | 948 | 1196 | 1280 | |
| M5 | 1250 | 1440 | 1440 | 1680 | 1680 | 1980 | |
| M6 | 650 | 700 | 850 | 1030 | 1290 | 1350 | |
| 喂料口 | R1 | 800 | 970 | 970 | 1125 | 1075 | 1300 |
| R2 | 250 | 300 | 280 | 400 | 500 | 550 | |
| R3 | 250 | 300 | 300 | 400 | 600 | 560 | |
| R4 | 1350 | 1650 | 1700 | 2000 | 2050 | 2400 | |
| r1 | 306/3 | 356/3 | 336/3 | 456/3 | 556/4 | 620/4 | |
| r2 | 306/3 | 356/3 | 356/3 | 456/3 | 656/5 | 630/4 | |
| 下機殼 | B1 | 600 | 750 | 750 | 850 | 900 | 1050 |
| B2 | 2440 | 2440 | 2500 | 2500 | 2500 | 3000 | |
| B3 | 830 | 970 | 996 | 1148 | 1632 | 2102 | |
| 基礎尺寸 | Z1 | 1000 | 1200 | 1200 | 1400 | 1400 | 1670 |
| Z2 | 1400 | 1500 | 1500 | 1700 | 1700 | 1850 | |
| Z3 | 950 | 1000 | 1100 | 1200 | 1350 | 1350 | |
| Z4 | 1300 | 1400 | 1700 | 1900 | 2350 | 2350 | |
| Z5 | 554 | 594 | 744 | 916 | 1176 | 1250 | |
| Z6 | 400/1 | 450/1 | 550/1 | 600/1 | 400/1 | 800/1 | |
| Z7 | 1144 | 1334 | 1334 | 1566 | 1566 | 1880 | |
| Z8 | 500/1 | 600/1 | 600/1 | 700/1 | 700/1 | 940/2 | |
上一篇:高溫物料篩分選擇不銹鋼振動篩 下一篇:斗式提升機安裝使用說明書